AWO532W
Artikelnummer: 7502532
Rekordergehäuse zur RACK-Montage
- 19″ Montage innenstehend
- 2-fach abschließbar
- praktisches Handling
- stabil und sicher
- vorgestanzte Kabelöffnungen
Dateien
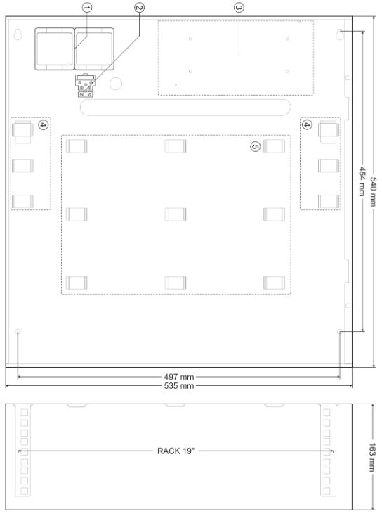
Das Gehäuse AWO532W schützt den Rekorder vor unbefugtem Zugriff oder Diebstahl. Das Gehäuse besteht aus Stahl mit einer Dicke von 1 mm. Es kann mit zwei Schlössern (unterschiedliche Codierung) ausgestattet werden und verfügt über einen Sabotageschalter bei Öffnung. Aufgrund der vertikalen Installation und möglichen 19″ Montage verschiedenster Geräte im Gehäuse, ist es ideal für eine platzsparende Installation, an denen tiefere Gehäuse oder 19″ Schränke nicht eingesetzt werden können.
Das Gehäuse hat einen speziellen Halter mit Haltebügeln, der die Installation von Rekordern mit folgenden Abmessungen ermöglicht:
Breite bis 530 mm, Höhe bis 380 mm, Tiefe bis 155 mm
Abmessungen B x H x T
Abmessungen BxHxT
Alarmkontakte
Umgebungstemperatur
Geeignet für



